Willkommen im Kreis 4
Im Hinterhof
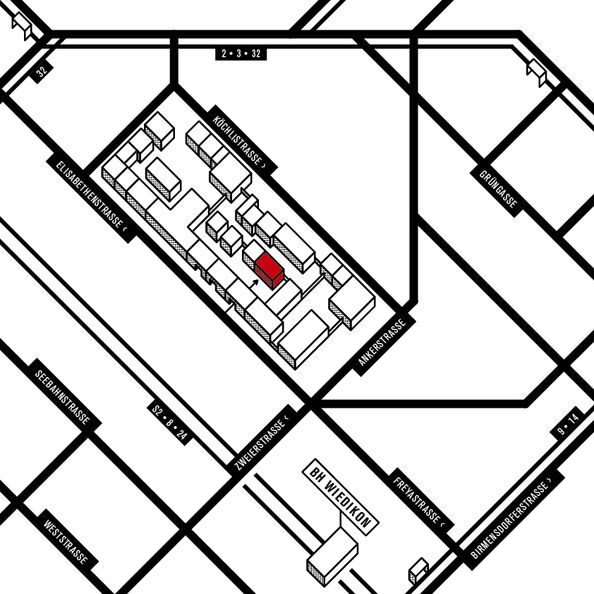
Die Gestalterei befindet sich im obersten Stock eines alten Backsteingebäudes im Hinterhof der Elisabethenstrasse 8, gleich neben dem Tramdepot. Ein Parkplatz steht unseren Kunden und Lieferanten gleich beim Eingang zu Verfügung. Grosse und schwere Materiallieferungen können direkt mit einem Warenlift per Rolli ins Büro geliefert werden.
ÖV-Stationen in der Nähe
Bahnhof Wiedikon mit den Tramlinien 9 und 14 sowie die S-Bahnen 2, 8 und 24 und die Busse 67 und 76. Weitere Bus-Verbindungen nach Bahnhof Wiedikon sind 215/245, 220, 235 und 350. Auch in der Nähe die Station Kalkbreite mit den Tramlinien 2 und 3 sowie dem Bus 32.
Individual Verkehr
Mit dem Auto aus Richtung Süden kommend erreichen Sie uns mit der Autobahnzubringer A3 mit der Fahrt über die Sihlhochstrasse Richtung Bahnhof Wiedikon. Oder von Norden über die A1 Richtung Chur. Die Elisabethenstrasse kann nur von Süden her befahren werden (Einbahnstrasse).

